Dieses Immobilien-Angebot stellt eine äußerst seltene Gelegenheit für Interessenten mit dem Wunsch nach anspruchsvollem Wohnen in guter Lage der traditionsreichen Stadt Einbeck dar. Es bietet Ihnen die Möglichkeit ein attraktives Eigenheim zu erwerben und gleichzeitig profitable Mieteinnahmen zu generieren. Zum Verkauf angeboten wird ein im Jahr 1952 massiv erbautes Doppelhaus mit 3 eigenständigen Wohnbereichen und vollständiger Unterkellerung.
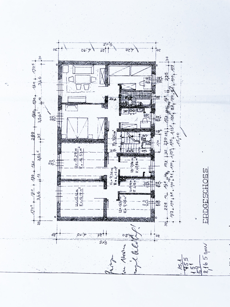
Insgesamt verfügt das Doppelhaus über eine Wohnfläche von ca. 293 m² zzgl. weiterer Nutzflächen. Der Hauptwohnbereich des Hauses befindet sich in der linken Haushälfte und wird zur Zeit von den Eigentümern bewohnt. Mit einer überaus durchdachten und großzügigen Raumaufteilung stehen in diesem Bereich ca. 183 m² Wohnfläche zur Verfügung.
Die rechte Haushälfte ist in zwei eigenständige Etagen mit jeweils einer Wohnung aufgeteilt. Die Wohnung im Erdgeschoß ist ca. 61 m² groß, die Wohnung im Obergeschoß ca. 49 m². Dieser Bereich des Hauses und zwei Garagen sind vermietet und erzielt aktuell eine monatliche Nettomieteinnahme von 956,00 €. Für einen Kaufinteressenten wird sich die bestehende Vermietung entsprechend positiv auf eine mögliche Immobilienfinanzierung auswirken.
Das Grundstück des Hauses wurde von den Eigentümern mit viel Liebe zum Detail gestaltet und lädt zum Verweilen und Natur genießen ein. Ein Gartenteich, eine überdachte Terrasse und ein Gartenhaus schaffen gemeinsam mit den verschiedenen Ziersträuchern eine sehr entspannte Atmosphäre. Bitte beachten Sie, dass es sich bei dem Grundstück um ein Erbpachtgrundstück handelt. Der Erbpachtvertrag läuft bis zum 31.03.2101. Der jährlich an den Erbpachtgeber zu zahlende Erbpachtzins beträgt zur Zeit 2.292,19 €.
Gerne bieten wir Ihnen die Gelegenheit sich im Rahmen einer Besichtigung vor Ort von den vielen Vorteilen dieses interessanten Hauses zu überzeugen und sich einen persönlichen Eindruck zu verschaffen. Wir freuen uns auf Ihre Kontaktaufnahme.
Das Doppelhaus befindet sich auf einem ca. 1.137 m² großen Erbpachtgrundstück in bevorzugter Lage eines reinen Wohngebietes der traditionsreichen Stadt Einbeck. Die unmittelbare Nachbarschaft des Hauses ist von klassischen Einfamilienhäusern geprägt und familienfreundlich strukturiert. Die Einbecker Innenstadt mit ihren weit über die Region hinaus bekannten historischen Fachwerkbauten und vielen interessanten Einkaufsmöglichkeiten erreicht man bequem zu Fuß in nur ca. 10 Minuten. Des Weiteren befindet sich fußläufig in ca. 2 Minuten eine Grundschule, in ca. 5 Minuten ein Supermarkt und in ca. 8 Minuten der Einbecker Bahnhof. In dieser Lage wohnt man ruhig und abseits vom Alltagstrubel einer Stadt, aber dennoch relativ zentral. Als regionales Zentrum verfügt die Stadt Einbeck insgesamt über eine sehr gute Infrastruktur mit sämtlichen Einrichtungen des täglichen Bedarfs. Vom Bahnhof mit regelmäßigen Abfahrten in die Richtungen Nord und Süd über verschiedene Schulen bis hin zu attraktiven Freizeiteinrichtungen ist alles vorhanden.
Massive Bauweise – vollständig unterkellert – ausgebautes Dachgeschoß – gedämmtes Dach – Gas-Zentralheizung mit Warmwasseraufbereitung – Kaminofen – Fenster aus Kunststoff mit 2-facher Isolierverglasung – teilweise Rolläden an den Fenstern – TV-Empfang über Satellit und Kabel – Küche mit Einbaumöbeln und Elektrogeräten – Bäder mit Dusche und Wanne – Fußbodenbeläge aus Laminat, Designbelag und Fliesen – Wintergarten mit Sonnenschutzmarkise – großzügiger überdachter Balkon mit Treppenabgang zum Garten – überdachte Terrasse – gestaltete Gartenfläche – Gartenteich – Gartenhaus für Geräte – 3 Garagen für PKW.
Möchten Sie die genaue Lage dieser Immobilie erfahren? Dann senden Sie uns bitte eine Anfrage über das Kontaktformular. Im Anschluß erhalten Sie per E-Mail einen Link zum Herunterladen des Exposés inklusive der vollständigen Objektadresse.
Für weitere Informationen und zur Vereinbarung eines Besichtigungstermines stehen wir Ihnen darüber hinaus auch gerne telefonisch zur Verfügung. Wir freuen uns auf Ihre Kontaktaufnahme.